
CONCEPTION ARCHITECTURALE
Accompagnement complet : conception, permis de construire, rendus photo-réalistes - du croquis au permis
Conception architecturale
« Vos idées, nos plans, votre projet révélé. »
« De l’idée à la réalité : voyez votre projet prendre vie. »
De l'avant projet au permis de construire
Maquettes 3D
Missions
BIM Revit
Pour les professionelles qui souhaitent gagner du temps
CONCEPTION ARCHITECTURALE "Vos projets Immobilier, conçus et visualisés en 2 et 3D"
À propos d'Arkin3D
Arkin3D est une agence spécialisée en conception architecturale et visualisation 3D, offrant des services pour la production de plans de bâtiment de l'avant projet jusqu'au documents graphiques pour la consultation des entreprises.






Notre expertise
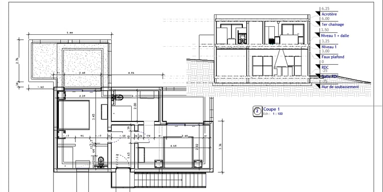
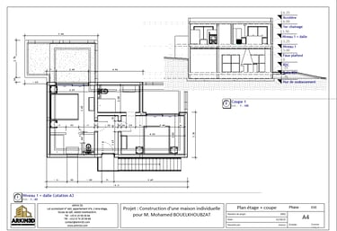
Plans (Neuf / extension / Rénovation)
Dossier de permis de construire
Perspective 3D extérieure
Perspective 3D intérieure
Plans et image de vente pour promoteur et professionelle
Film 3D et visites virtuelle pour la commercialisation
Sous-traitance de plans pour professionnel (Architecte et entreprise du Bâtiment)
Maquette numérique BIM (Revit)
Nos Services
Nous proposons des services de conception architecturale et de visualisation 3D pour tous vos projets.




Dossier de permis de construire
Gagnez du temps et de la sérénité
Nous préparons pour vous des dossiers de permis de construire complets, pour une validation rapide et sans complications.
Plans
Donnez vie à vos idées
Nous concevons des plans sur mesure pour vos projets de construction, d’agrandissement ou de rénovation. Chaque détail est pensé pour optimiser l’espace, valoriser votre bien et garantir la conformité aux normes.










Voyez votre projet avant qu’il ne prenne vie
Nos rendus 3D extérieurs ultra-réalistes vous permettent de visualiser chaque détail architectural et de séduire investisseurs et acheteurs.
Perspective 3D Extérieure
Perspective 3D Intérieure
Plongez dans vos futurs espaces
Grâce à des perspectives intérieures réalistes, imaginez l’ambiance, la lumière et les volumes avant la première pierre.
Boostez vos ventes
Nous créons des visuels de qualité professionnelle qui mettent en valeur vos biens et captivent vos clients dès le premier regard.
Plans et Images de Vente pour Promoteur et Professionnel
Faites vivre une expérience immersive
Proposez à vos clients de découvrir leur futur espace à travers des films 3D captivants et des visites virtuelles interactives.
Film 3D et Visites Virtuelles pour la Commercialisation
Sous-Traitance de Plans pour Professionnel (Architecte et Entreprise du Bâtiment)
Gagnez en efficacité
Nous réalisons vos plans techniques avec précision pour que vous puissiez vous concentrer sur votre cœur de métier.
Maquette Numérique BIM (Revit)
Une gestion moderne et optimisée de vos projets
Nos maquettes BIM garantissent précision, coordination et efficacité pour toutes les phases de construction.
Zone d'intervention
The WORLD
Contact
Demande de contact
contact@arkin3d.com
France +33 6 15 58 38 94
© 2025. All rights reserved / Conception et propriété de Arkin3D / Droits d’auteur et propriété intellectuelle
L’ensemble des images, visuels, rendus et plans figurant sur ce site constitue des œuvres protégées au titre du droit d’auteur et sont la propriété exclusive de Arkin3D.
Toute reproduction, représentation, modification ou utilisation, en tout ou partie, notamment à des fins de conception ou de réalisation d’une construction, sans autorisation écrite préalable de Arkin3D, est strictement interdite et constitue une contrefaçon au sens de l'OMPIC.
Maroc +212 6 74 20 59 68
